




The project is an adaptive reuse of an existing football pavilion into a new football pavilion and community space.
The current pavilion is in a tired state, has a leaking roof and the timber cladding has rotten and fallen off in
places. Furthermore, the interior and changing facilities require an update and refurbishment to encourage more engagement with the club, this is even more the case with grass roots football and the successful emergence of the girls teams.
The proposals will ensure that CCYFC have a fit for purpose facility that is safe, warm, dry and welcoming for all, both new and existing members, along with visiting teams and officials.
The conceptual narrative for the proposals have been developed through various iterations with the client, brief and the approach to the site and context. This has produced a considered approach to the project and the
preference for an adaptive reuse of the existing building over a demolish and re build. The proposition intends to refurbish the interior and exterior of the building to provide a high quality space for changing, meeting, and storing equipment along with a much improved kitchen and cafe facility for use by the players, spectators and club members during matches and training sessions.
The new layout for the pavilion builds on and improves the current situation. However the new refurbishments
provide a clear use of the different functions and improved facilitates.
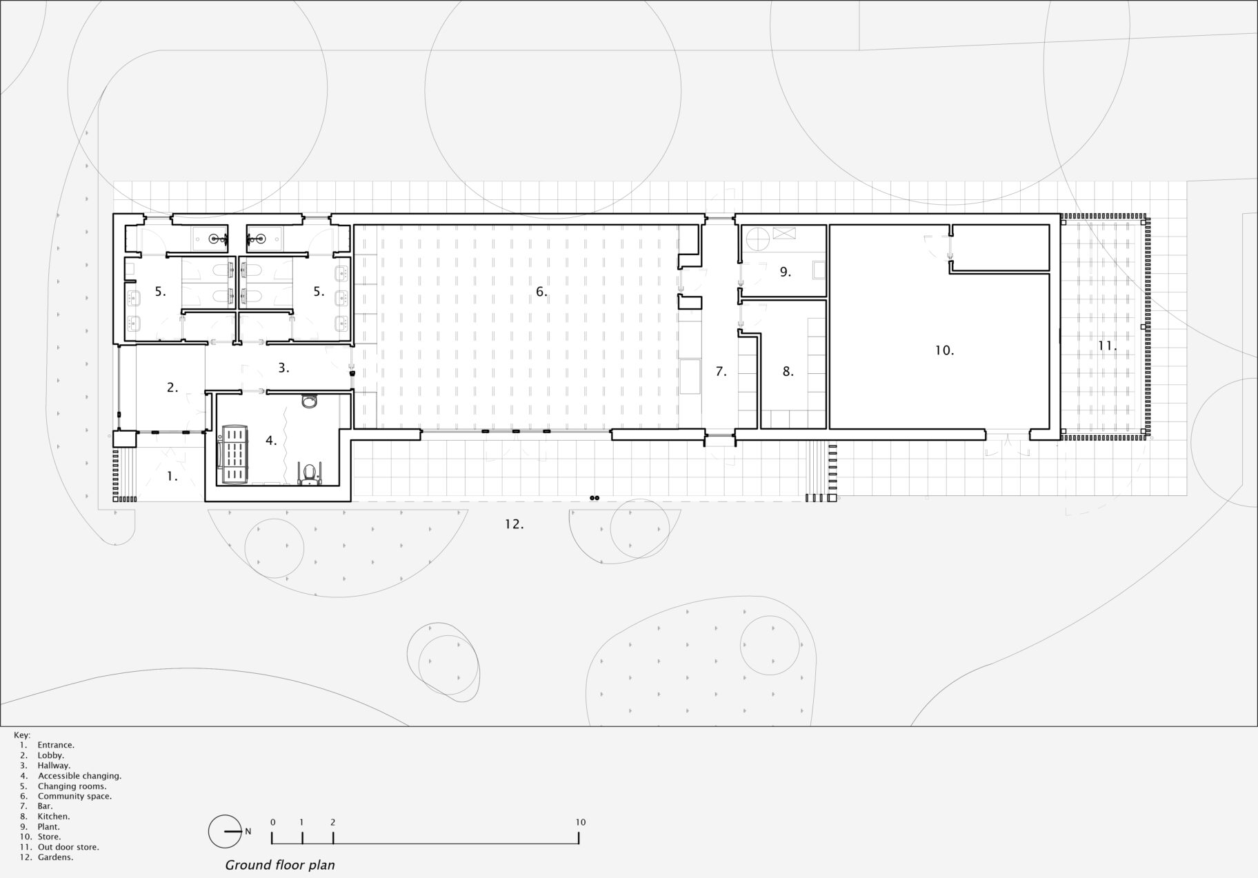
The layout and organization of the spaces follows a simple and clear idea. The wet areas, changing spaces and
entrance are all on the left of the building, with refurbished changing and WC facilities part of the work. A new Part M compliant WC and shower room will be included at entrance level.
The middle of the building will be a communal space which will have a kitchen, serving area and seating that can be used for meetings, training lessons, and enjoying post game drinks/sandwiches. To aid with the commercial and practical use of the building during games, a new external hatch to the kitchen will be provided, this will allow drinks and snacks to be served from the club rather than having to use an external food van. We are reviewing coordinating with a local charity to help run the kitchen, all of which will improve community engagement and commercial aspects for the club.
The spaces to the right are kept for storage of football equipment such as goals and match day equipment. To increase the efficiency and security of this area we are proposing a small covered extension to the north side of the building, this small enclosure will have a roof and slatted timber screening to create a secure storage area for equipment.
As well as the internal and programme changes, the exterior of the building will be upgraded due to a tired and unfit for purpose current condition, the roof leaks and the cladding is falling off. We are proposing a new
insulated timber cladding to all walls, a new insulated tiled roof and new glazing, doors and windows. All of which will give the building a new lease of life and provide a sustainable rescue of the existing building rather than
demolishing and rebuilding.




