













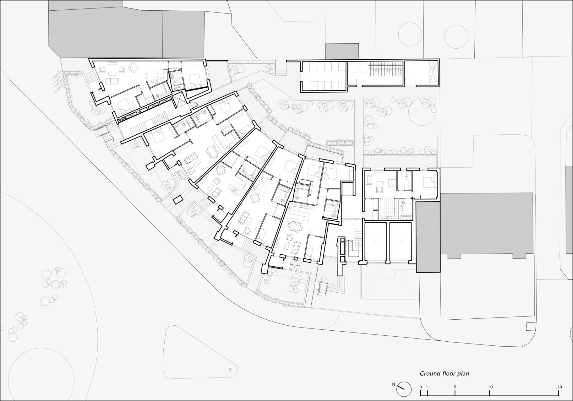
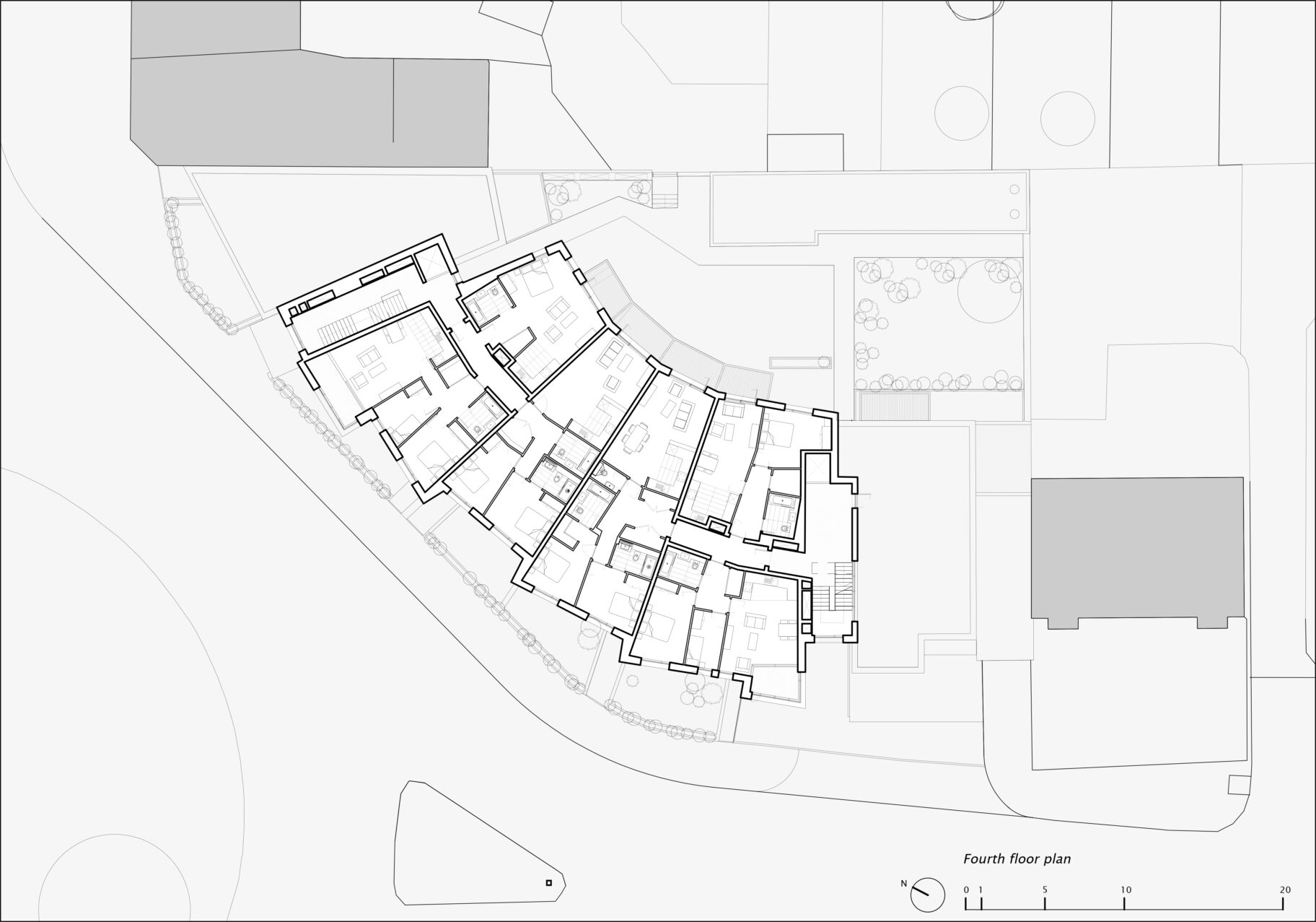
The site sits on a corner junction with buildings on either side, the proposed plan of the development follows the urban grain and development pattern along the street with the built areas closest to the street and pavement. The Southern part of the building sits broadly in line with the adjacent 4 storey apartment block on Field End Road, as the site curves to the North the building steps in and out to turn the corner and also meet with the alignment of the post office building on Eastcote Lane.
The stepping in plan is a key driver for the design, each apartment id formed from a segment which is set out from a point to the West of the site. Each segment is then rotated along the site, much like an opening fan. As the segments turn across the site, they also move in and out, stepping both to the front and back. This step allows the ground floor apartments to have a larger garden and buffer space between the rooms and the pavement. In turn the rear stepping in and out breaks up the mass and rear elevation and gives the opportunity to have a mix of balcony types which undulate around the building.
The stepping also provides a rhythm and articulation as the building turns the corner, the addition of winter gardens to the North and west facades also embellishes this design. As well having the stagger in plan we are also staggering the building in section with the use of brick reliefs. The staggering and undulating front facades help the building break up its appearance and view from ground level along the street. This is more effective at providing an interesting and pleasant elevation than a square building with flat facades.
The apartments are served by two full height cores which also set back from the road, providing a clear access and entrance way but also a visual break within the building. The cores serve apartments both sides and also the basement. To further enhance the break, the cores have a set back staircase which provides double height spaces to the street side.
The front of the building or the street side elevation has to address the buildings adjacent on Field end Road and Eastcote Lane. From the site analysis it is apparent that the street side is noisy, could have potential fumes and pollution from traffic around the busy round about. The elevation also has a North west elevation. Our solution for the elevation is to introduce winter gardens to all apartments above ground floor.
This offers a visual buffer to the road and the business park across the street but also an
environmental one too, the sliding doors to the living rooms can be fully open with the winter garden windows slightly open for fresh air, or in winter the winter garden window shut which offers a buffer in
temperature between the interior of the apartment and the outside. Furthermore, the winter gardens offer an out door space that can be closed off that could also be used much like a balcony or reading study space in the double aspect flats.
Architecturally the winter gardens provide a relief and depth to the facades, so that the facade steps in and out with the winter-gardens providing light and shadow across the facade and a changing facade of metal and brick to one side and glazing to the other. This will also allow for views through the winter gardens across the building, all of which reduces the mass of the building and increases the texture, grain and proportion of the scheme.
The rear facade offers a more open language, the elevation has more expansive glazing to maximize light into the living spaces. In addition a series of external balconies stagger across the elevation, each one undulating to provide a changing facades across the site. To further lighten the elevation, the
balconies are clad in a brass coloured metal with vertical guarding elements.
Perforated metal privacy screens sit between each balcony, the perforations still allowing daylight into the spaces.
If the North elevation is opening up in a convex pattern the rear South Eastern elevation is more
concave and the glazing larger as the rooms all converge to a focal point in the garden.






