







Nick Willson Architects designed the original house over 10 years ago, which was short-listed for an RIBA London award, and are now happy to update and extend this lovely project. The house was designed when the family were younger and working patterns were geared towards being in the office full time. We are now looking at how the house can be modernised to suit the current family’s need and also how best to use the large garden with a growing family, along with general restoration elements of work.
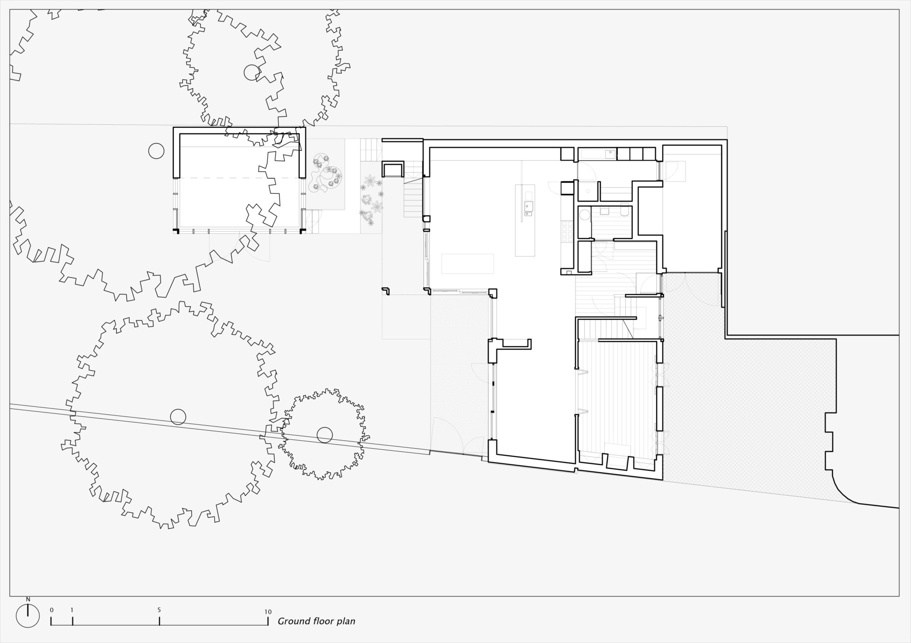
The proposals seek to enhance and conserve the house as below:
1. A new single storey garden room to the rear of the house with new garden areas.
2. A new glazed colonnade link to the garden room from the house.
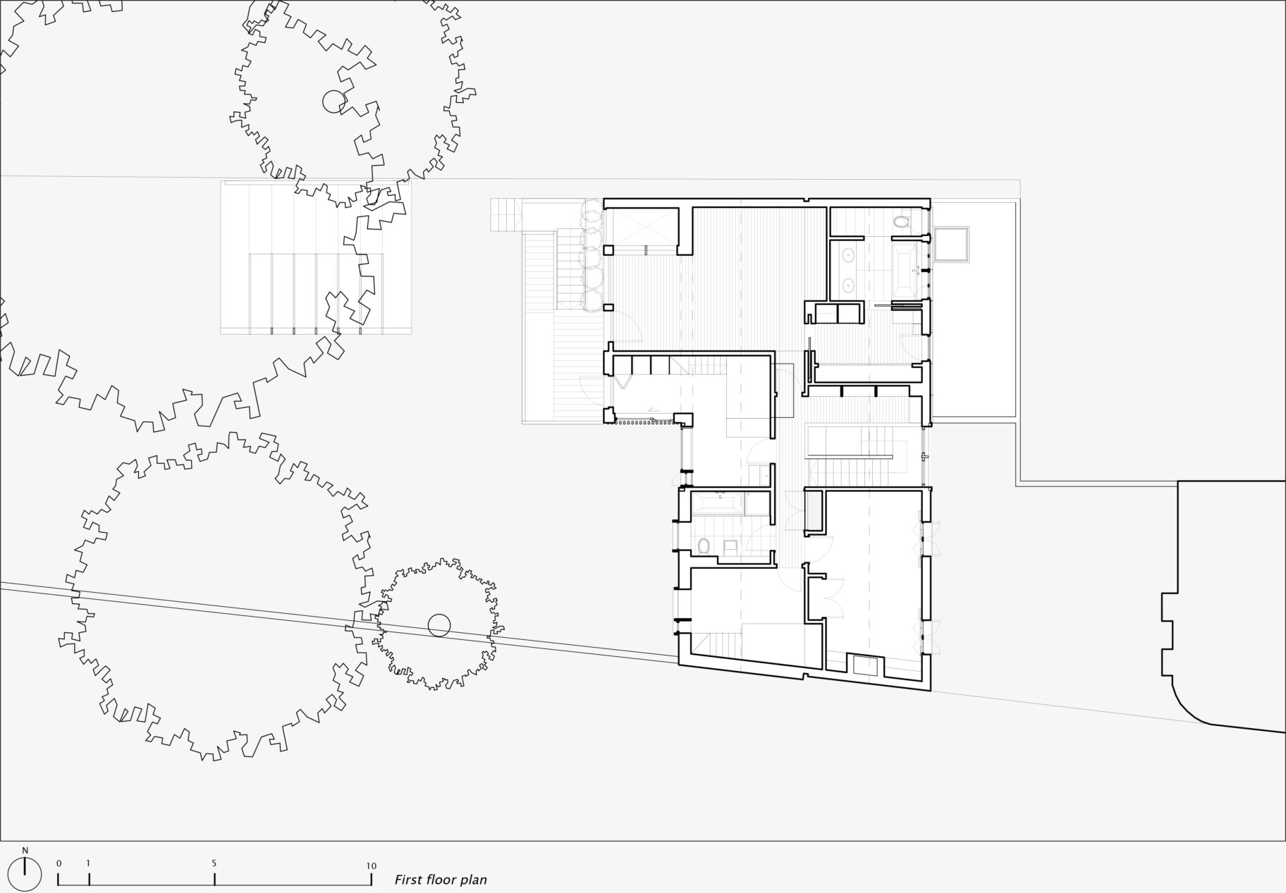
3. New rear extension over the rear terrace at first floor with new stairs and balcony.
4. Extended bedrooms at first floor. Existing skylight to be incorporated and extended up.
6. PV panels to roof and new battery storage.
7. Landscaping to the rear garden with new herbs, stone paths and seating area at the end.




