









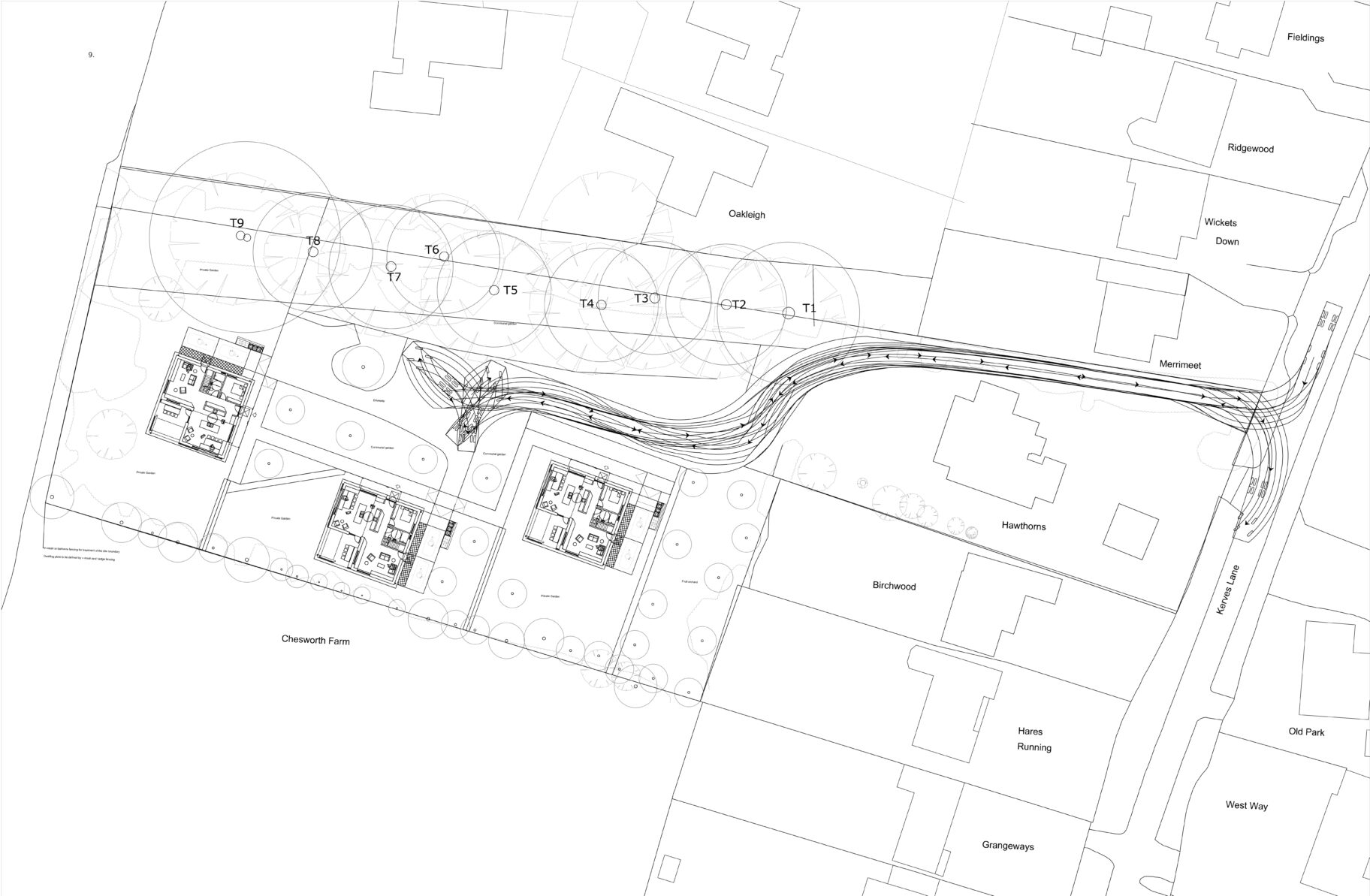
Hawthorn, Kerves Lane, Horsham, West Sussex, RH13 6ET
Views are possible along the length of the site, facing the west, north and south side.
Set back from the main road, the site can enjoy a quite environment away from the main road with the existing buildings on the street acting as a sound buffer. The main axis of the site originates from the morphology of the context. This axis can take advantage of the sun path to harvest day light and solar energy.
The nature capital existing on the site is an opportunity to preserve and reinforce a wildlife habitat. As a result this can work in alignment with the local planning strategy to protect the character of Horsham.
The scheme is located behind the existing brick and shingles building on the site.
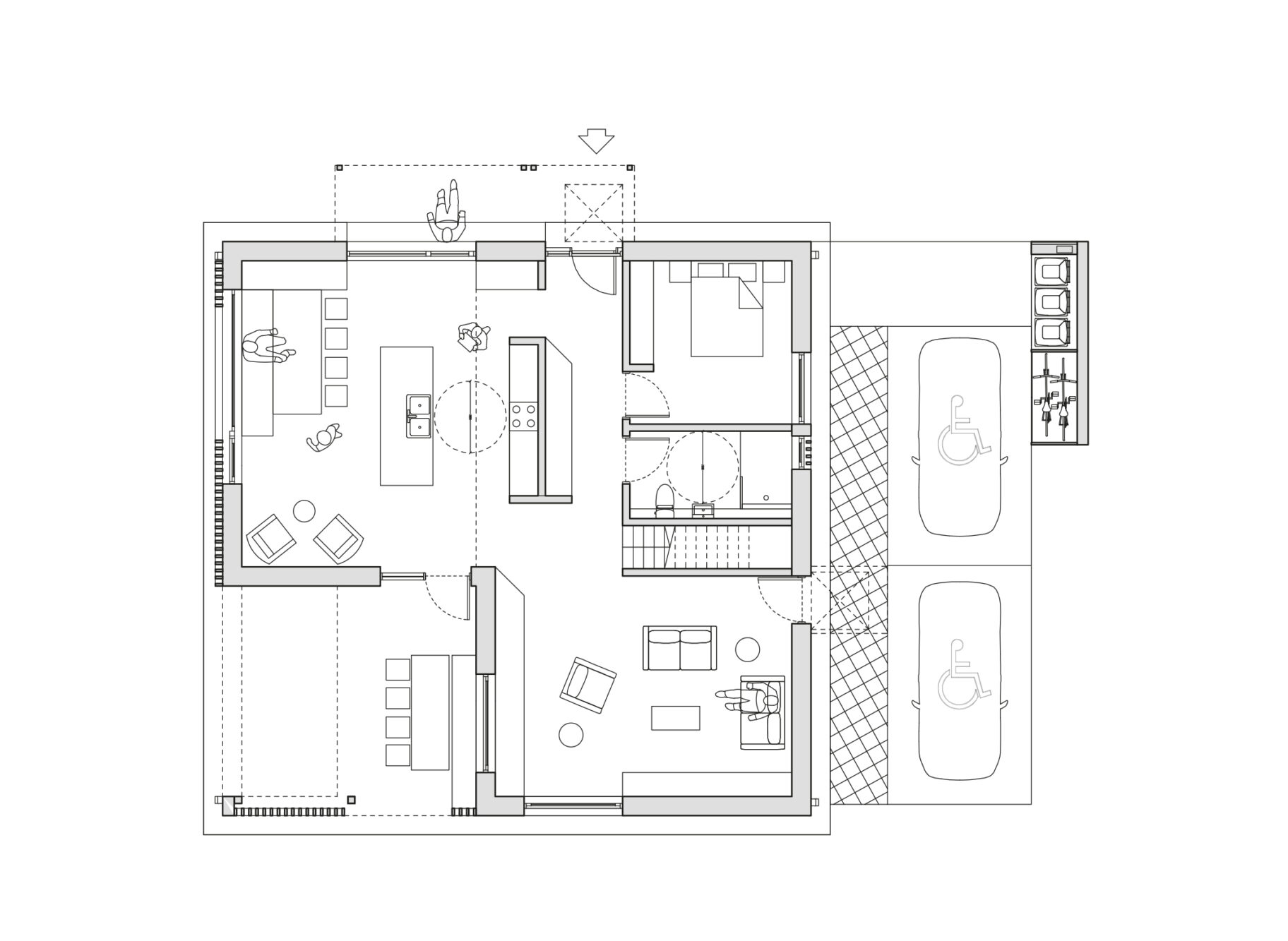
The proposals have been carefully designed to mitigate any sense of overbearing and enclosure and avoid any overlooking to maintain the privacy of both occupants of the proposed development and the existing neighbouring residents.
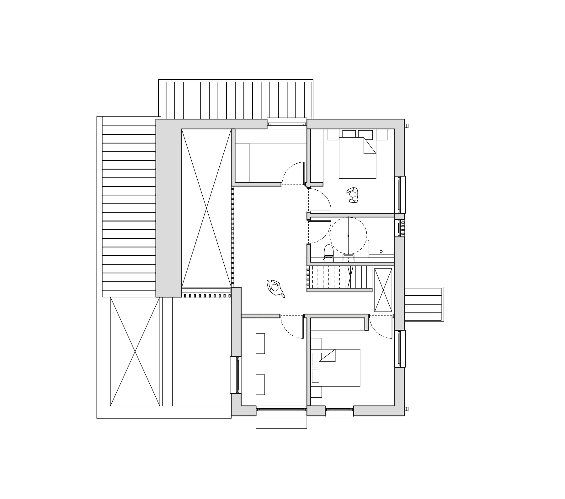
We have taken care to maintain a subordinate scale for the proposed dwelling, shaping the roof to minimise the sense of enclosure and the impact on daylighting to adjacent windows and gardens.
The roof pitch negotiates between the orthogonal arrangement of the adjacent existing buildings and the rotation of the outer building envelope in plan, creating a sculptural pitch. This roof form oriented towards the south west is ideal for solar harvesting. The roof form works in conjunction with a rain water harvesting system reducing mains water use on site.
The orientation of the homes to harvest daylight and solar heat was the first significant strategy of the scheme. In response to the District Councils Sustainability targets and in order to make as little impact as possible on the environment, a modest roof shape with simple gutters was designed to work in conjunction with the rainwater harvesting system. Due to the dark toned zinc cladding, it largely disappears into the sky and stands out sharply against the green environment. In the winter when the trees are bare and the sun is low, the solar heat comes in on the southwest façades.
When it rains, the water runs off the roof like an umbrella and is collected in an underground tank through a drainage system around the terrace. The rainwater is then used for outdoor purposes to water the garden and has the potential to be used to flush toilets, and supply the dishwasher and washing machine with very soft lime-free water.
Furthermore, the homes are energy efficient with a heat pump and ventilation with heat recovery. In this scheme, the architecture that we strive for as a practice comes together with sustainable and pleasant living.







