




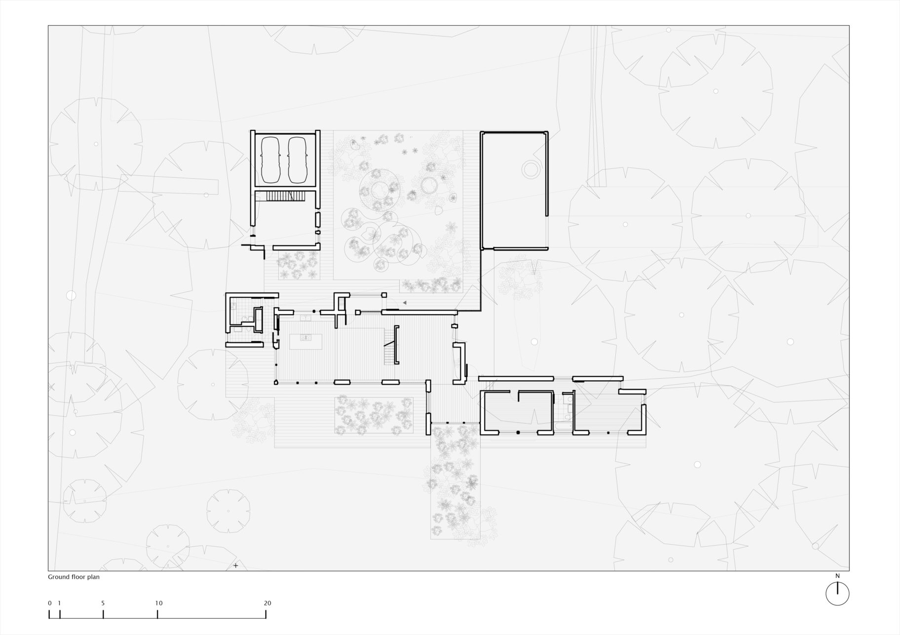
We wanted to create a new eco-friendly home that is sympathetic to the beautiful countryside with a design that respects the landscape and natural contours of the site. We proposed a house that will blend seamlessly with its surroundings as it staggers gently through the location’s natural topography thus softening the visual impact on the large site. Orientated towards the sun for passive solar gain, the rooms of this new home will be flooded with light all day. We are also proposing to re organise and consolidate the disorganised buildings on the site.
This will involve a replacement dwelling for the unattractive existing house, along with the building of a replacement storage shed, all of which are located to the North of the site, thus freeing up the beautiful view to the South. In addition, we are proposing to re clad the garage and remodel the roof, adding a dormer and guest accommodation. Conceptually, the new scheme will be based around three new gardens and courtyards, which are reminiscent of traditional country buildings, each courtyard/garden will have a mixture of hard and soft landscaping to create a welcoming and natural foil to the proposed buildings.
The first, a courtyard to the North will lead from the main entrance with the new house to the South and the garage and storage space on either side of the courtyard. New planting, pathways and landscaping will create a softer approach from the main road and also offer further screening. A covered walkway will link the garage to the main house, this will be covered in sedum and will help frame the courtyard. A new planted garden will be created in the middle of the courtyard with the pathways around it. The second area will be a garden and courtyard which will sit to the South and will be formed by the main house and the lower wing, a new pool and garden will be centred on the courtyard. This area will also have a new lawn/meadow garden which will bleed into the existing landscape.
The third external space will be a garden to the East, this will be centred around the retrained large Oak tree with screening from the Northern courtyard and a planted garden, this area will be seen from the living spaces and will offer a more intimate space to enjoy the adjacent copse. The new main house starts at the entrance formed from a cedar timber clad and slatted vestibule that provides a focal point for guests but also a way of keeping the internal environment of the house stable. This space is linked to walkway canopies with the vertical nature of the cladding continued around the walkways and onto the refurbished garage space and the new storage space.
This vertical cladding will reflect and enhance the vertical nature of the copse and provide a ribbon of wood around the courtyard. Once through the entrance, one is greeted by a double height space with a staircase rising to the left and a bridge between the rooms at first floor above. A large picture window frames the view to the garden beyond. An open plan kitchen leads off to the left with a W.C, utility and plant room beyond, a separate back door access the utility and plant rooms. The living space is to the left bordered by the large stone chimney and wood burner. A tall window and window seat allow a view to the large tree and private garden as well as allowing the morning sun into the spaces. To the South of the living space there leads off a solar collection room, garden room. This room provides a true inside/outside space when the doors are opened up with a natural pool leading from the space.
A small set of steps lead off from the sun room leading into a corridor with a large window at the end giving beautiful views to the copse and landscape, again this window faces East and allows morning sun to flood the corridor. A series of four flexible bedroom/studio rooms and bathroom lead off the corridor with windows and doors facing South. An external staircase leads up from the corridor wall onto the roof terrace above. At first floor, the rooms lead off from the bridge looking over the double height space and the garden and view beyond. A smaller slot window provides a view back over the entrance. The sloping roof above incorporates roof lights and louvres.
There are two bedrooms with en suite bathrooms either side of the bridge. A balcony runs the width of the house which also provides shading to the living spaces below. Each bedroom also has a small reading space and window seat facing out to the large gardens and the sedum roof over the lower single storey wing.
The project is currently being professionally photographed






