









The introduction of a new potential 31 room hotel will bring an acceptable and symbiotic use to the site, which in turn helps restore and enhance, conserve the listed building for many years to come. A large building such as the listed cinema will require an ongoing new function and the proposed hotel and banqueting facilities would assist with this.
As part of the designs, we are proposing to refurbish and activate the unused gym areas as part of the hotel, with some new carefully located openings in the side wall that will respond to the hotel spaces and entrance.
Furthermore we propose to refurbish and conserve the original music rooms and instruments that are still intact, these rooms can become display and archive features as part of the hotel and banqueting functions.
As Architects we have been involved with a careful study of the original fabric, spaces and finishes. This has been through a close analysis of the spaces, history and current condition of the building, we have carried out two series of watching briefs when debris and elements of the old nightclub materials and elements were removed. As part of this process we have been able to record and discover original areas, elements of the Listed building.
The peeling back of layers fabric to uncover the original has resulted in an accurate and detailed set of drawings and photographic studies that inform the new design, whilst also providing clues to the uses, and key spaces of the original building. The conceptual starting points for the new hotel building and associated designs all start from the original research and buildings concepts,
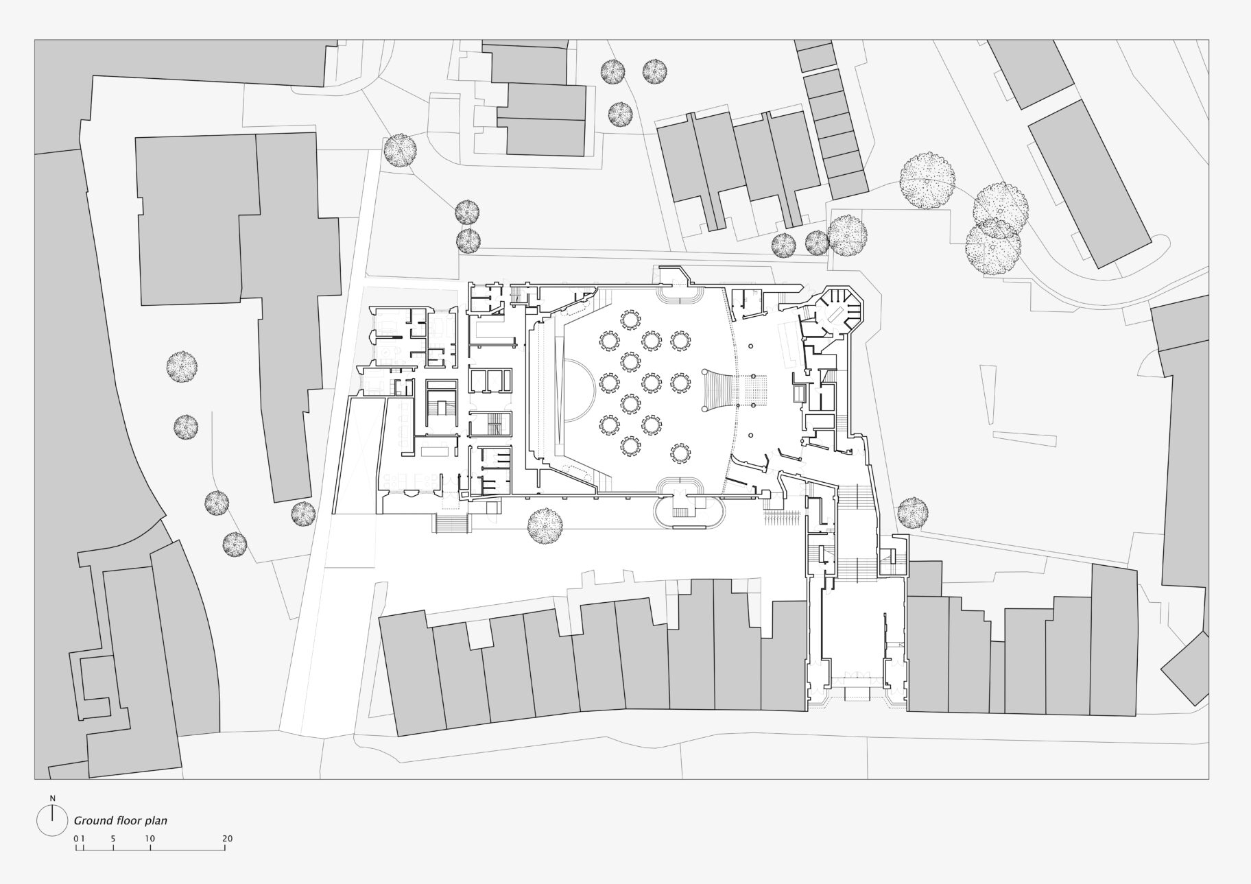
The new hotel and basement sit on an empty and underused area of the site to the west of the listed building.
The layout and massing have been carefully design to sit comfortably in the context and to compliment the
cinema building. The hotel has a ground floor entrance lobby that is accessed from the front of the site via steps and a platform lift. A central stair rises through the building from the lobby with a staggered arrangement of rooms around it. The articulated and staggered nature of the plan provides a sculpted appearance and a scalloped design that references the plaster work in the existing cinema.
A new glazed space and canopy elevation links the new stone hotel elements and the existing brick cinema. This provides a clear delineation between new and old but also allows the retained western brick wall to become an
archive of the old building that can be viewed from the new hotel circulation. Various new penetrations will be made into the western brick wall to create access into a lift and staircase core within the old gym spaces and new break out spaces for the hotel use. A large roof light above will continue the glazed link concept. The gym spaces will be incorporated into the new hotel and will accommodate hotel rooms and BOH functions as well as allowing access to view the existing cinema music rooms as a museum type piece.
The new hotel will be built from high quality materials that take reference from precedent studies and the
existing cinema. Stone, terrazzo and tile all form an articulated facade that has depth and profiled sections to provide shadow, pattern and rhythm along the elevations. The scalloped nature in plan also provides a rich facade with depth of materiality and structure. Windows and reveals will be in metal that will reference the existing building metal work and glazing patterns.
As part of the overall scheme and application, the existing hall will be changed to a banqueting facility with new kitchen spaces in the basement of the existing gym area. This will bring the old building back to life and a
viable use. Furthermore the front entrance and hall from the high road will also be refurbished and the main stair opened up to reflect the original arrangement. New replacement heritage windows and decorations are also
proposed as part of a general refurbishment project.






